Piping filterProduct description The Piping filter is mini-type equipment used to filter solid particle in liquids for the purpose of protecting compressor, pump, instrumentations and other devices for normal operation. When liquids enter into the cylinder with specified sieve, dust particles are stopped, clear filtered liquid dischar ges from filter outlet. If it is necessary to clean the filter, remove the cylinder and wash it outside and then replace the cylinder. It is very convenient to maintain it. Filters produced by our company features compact structure, large filtering capacity, low pressure loss, wide application, convenient maintenance and cheap price. Main filtering liquids include: (1)Weak erosive materials used for chemical and petrochemical production:Such as water, oil products, natural gas products etc. (2)Erosive materials used for chemical and petrochemical production:Such as caustic soda, sodium carbonate, thick and thin sulphuric acid, carbonic acid, aldehyde acid, etc., (3)Low temperature materials used for refrigeration: Such as liquid methane, liquid ammonia, liquid oxygen and all kinds of refrigeration agent. (4)Materials used for foodstuff production, pharmaceutical production with strict hygienic requirement: Such as beer, beverage, dairy products, syrup etc.
Denotation of product types The piping filters produced by the company include: (1) Y-type filter (2) T-type filter (3) Basket filter (4) Temporary filter (5) Gas filter
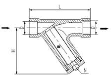
1、Y-type filter(1) Y-type cast thread-connection filter (PFYI-R type), Base welding connection filter(PFYI-SW type) (DN15~50, PN≤5.0Mpa) PFY I—R、PFY I—SW
|
Type
|
PFYI-R |
|
DN |
D |
L |
H |
N |
|
15 |
Rc1/2 |
100 |
74 |
Rc1/4 |
|
20 |
Rc3/4 |
110 |
55 |
|
25 |
Rc1 |
130 |
103 |
|
32 |
Rc1¼ |
160 |
110 |
|
40 |
Rc1½ |
180 |
132 |
|
50 |
Rc2 |
200 |
153 |
Rc3/8 |
|
Type
|
PFYI-SW |
|
DN |
D |
L |
H |
N |
|
15 |
21.8/18.5 |
100 |
74 |
Rc1/4 |
|
20 |
27.4/25.5 |
110 |
88 |
|
25 |
34.2/32.5 |
130 |
103 |
|
32 |
42.9/38.5 |
160 |
110 |
|
40 |
48.8/45.6 |
180 |
132 |
|
501 |
61.3/58 |
200 |
153 |
Rc3/8 |
(2)Y-type cast flange-connection filters with same diameter (PFYI-F type) (DN15~250, PN≤5.0Mpa) PFYI -F
|
DN |
L |
H |
N |
|
15 |
140 |
120 |
Rc1/4 |
|
20 |
140 |
120 |
|
25 |
140 |
120 |
|
32 |
170 |
160 |
|
40 |
270 |
160 |
Rc3/8 |
|
50 |
270 |
180 |
|
65 |
290 |
190 |
Rc3/4 |
|
80 |
360 |
250 |
|
100 |
410 |
280 |
|
125 |
480 |
330 |
|
150 |
520 |
360 |
M20×1.5 |
|
200 |
660 |
450 |
|
250 |
870 |
670 | (3) Y-type cast flange-connection filters with different diameter (PFYDI-F type), Y-type welding-connection filters with different diameter (PYFDI-W type) (DN40x32-250 x200, PN≤5.0Mpa)
|
DN1×DN2 |
PFYDI-F, L |
PFYDI-W, L |
H |
N |
|
40×32 |
250 |
210 |
160 |
Rc1/4 |
|
50×40 |
270 |
240 |
190 |
Rc3/8 |
|
80×50 |
320 |
310 |
250 |
Rc3/4 |
|
80×65 |
360 |
310 |
260 |
|
100×65 |
410 |
370 |
280 |
|
100×80 |
410 |
370 |
280 |
|
150×100 |
520 |
490 |
360 |
M20×1.5 |
|
200×100 |
660 |
600 |
450 |
|
200×150 |
660 |
600 |
450 |
|
250×200 |
870 |
800 |
670 | (4) Y-type conical thread-connection filters(PFYDII-R type), socket-plug-in welding connection filters (PFYII-SW type) (DN15~40, PN≤5.0Mpa)
PFYII-R,PFYII-SW
|
DN |
L |
N |
H |
PFYII-R |
PFYII-SW |
|
D |
D |
T |
|
15 |
130 |
Rc3/8 |
169 |
RC1/2 |
21.8/18.5 |
10 |
|
20 |
130 |
179 |
RC3/4 |
27.4/25.5 |
13 |
|
25 |
140 |
182 |
RC1 |
34.2/32.5 |
13 |
|
32 |
160 |
209 |
RC1¼ |
42.9/38.5 |
13 |
|
40 |
170 |
217 |
RC1½ |
48.8/45.6 |
13 | (5) Y-type flange welding-connection filters(PFYII-F type), (DN15~400,, PN≤5.0Mpa)
PFYII-F
|
DN |
L |
H |
N |
|
15 |
260 |
180 |
Rc1/4 |
|
20 |
270 |
190 |
|
25 |
270 |
190 |
|
32 |
280 |
230 |
|
40 |
280 |
230 |
|
50 |
290 |
245 |
Rc3/8 |
|
65 |
320 |
280 |
|
80 |
350 |
315 |
|
100 |
425 |
360 |
|
125 |
480 |
390 |
|
150 |
540 |
460 |
Rc3/4 |
|
200 |
700 |
540 |
|
250 |
800 |
660 |
M20×1.5 |
|
300 |
950 |
750 |
|
350 |
1050 |
845 |
|
400 |
1250 |
920 | (6)Y-type flange welding connection filters with sleeve (PFYJII-F type), (DN20~200,PN≤5.0Mpa)
PFYJII-F
|
DN |
L |
H |
Inlet & Outera.b |
Steam pressure |
N |
|
20 |
370 |
235 |
ZG1/2 |
≤0.6MPa |
Rc1/4 |
|
25 |
370 |
235 |
|
32 |
390 |
275 |
|
40 |
390 |
285 |
ZG3/4 |
|
50 |
420 |
295 |
Rc3/8 |
|
65 |
450 |
330 |
|
80 |
500 |
370 |
|
100 |
575 |
415 |
|
125 |
650 |
450 |
|
150 |
700 |
525 |
DN25 |
Rc3/4 |
|
200 |
890 |
610 | (7) Y-type flange connection filters with different diameter (PFYDII-F-A, PFYDII-F-B, PFYDII-F-C type)(PN≤10.0Mpa) (8) Y-type flange welding connection filters with different diameter (PFYDII-W-A, PFYDII-W-B,PFYDII-W-C type)(PN≤10.0Mpa)
PFYDⅡ—F—A,B,C,PFYDⅡ—W——A,B,C
|
DN1×DN2 |
H |
DN |
PFYDII-F-A,B,C L |
PFYDII-W-A,B,C L |
|
PN≤2.0 |
PN≤5.0 |
PN≤10.0 |
|
50×40 |
230 |
40 |
320 |
332 |
337 |
190 |
|
65×40 |
240 |
50 |
320 |
332 |
337 |
190 |
|
65×50 |
240 |
50 |
320 |
332 |
338 |
190 |
|
80×40 |
240 |
50 |
320 |
335 |
340 |
190 |
|
80×50 |
280 |
65 |
340 |
355 |
360 |
200 |
|
80×65 |
280 |
65 |
340 |
355 |
360 |
200 |
|
100×50 |
280 |
65 |
400 |
415 |
440 |
260 |
|
100×65 |
310 |
80 |
425 |
440 |
460 |
280 |
|
100×80 |
310 |
80 |
425 |
445 |
460 |
280 |
|
125×65 |
310 |
80 |
415 |
455 |
470 |
280 |
|
125×80 |
350 |
100 |
465 |
485 |
505 |
300 |
|
125×100 |
350 |
100 |
470 |
490 |
520 |
300 |
|
150×80 |
350 |
100 |
490 |
510 |
535 |
330 |
|
150×100 |
350 |
100 |
500 |
520 |
555 |
335 |
|
150×125 |
400 |
125 |
545 |
565 |
600 |
360 |
|
200×100 |
400 |
125 |
570 |
590 |
630 |
390 |
|
200×125 |
400 |
150 |
580 |
600 |
640 |
390 |
|
200×150 |
450 |
150 |
615 |
635 |
675 |
425 |
|
250×125 |
450 |
200 |
645 |
670 |
725 |
455 |
|
250×150 |
450 |
200 |
645 |
670 |
725 |
455 |
|
250×200 |
530 |
200 |
730 |
755 |
810 |
525 |
|
300×150 |
530 |
200 |
780 |
800 |
850 |
575 |
|
300×200 |
530 |
200 |
800 |
825 |
870 |
585 |
|
300×250 |
670 |
250 |
870 |
900 |
960 |
655 |
|
350×200 |
670 |
250 |
860 |
890 |
950 |
655 |
|
350×250 |
670 |
250 |
860 |
890 |
950 |
655 |
|
350×300 |
750 |
300 |
960 |
990 |
1040 |
720 |
|
400250 |
750 |
300 |
1080 |
1110 |
1190 |
850 |
|
400×300 |
750 |
350 |
1100 |
1140 |
1190 |
860 |
|
400×350 |
850 |
350 |
1180 |
1220 |
1270 |
925 |
|
|